Pre-comanda
Id bunuri:
149782
Termenul de fabricație: 30 zile

Uw
2.05
In afara:
RAL 9016 Traffic white
Interior:
RAL 9016 Traffic white
Caracteristici tehnice
Tip:
Ferestre
Forme de construcție:
Trei canate cu supralumină
Deschis:
Batantă
Uw:
2.05 W/(m²K)
Dimensiune (lățime x înălțime):
1900x1550 mm
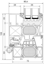
Desene de profil

Fotografie

Comentarii și întrebări ale clienților

Pre-comanda
Id bunuri:
149782
Lasă o recenzie
Termenul de fabricație: 30 zile
11.578,00 lei
7.525,89 lei
1. Parametrii de bază
Dimensiune (lățime x înălțime):
Deschidere:
Completare:
Culoare exterior:
Culoare interior:
Vitrare:
2. Accesorii
Mâner standard:
Alte:
3. Servicii
+ 214,20 lei
0 recenzii